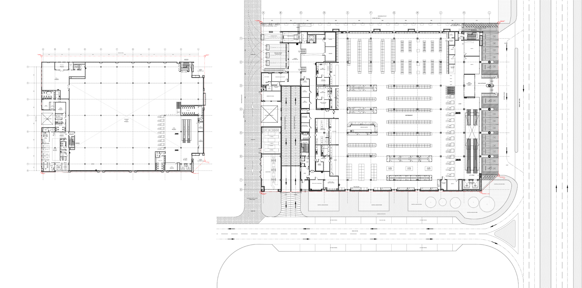
AL RASHIDIYA HYPERMARKET
Location: Al Rashidiya, Dubai, UAE
Client: Al Naboodah Group
Operator: Lulu Group
Located in the heart of Al Rashidiya’s residential area, this hypermarket of 13,450sqm is proposed to serve the needs of the local populace. The retail zone is designed to meet the specific requirements of the end tenants / operators M/s Lulu Group. The modern exterior façade, with its clean lines is in harmony between the metal and glass. The façade has been specifically designed to meet the operator’s essential requirement of providing minimum external exposure, providing more shelving space and keeping the customers focused on their shopping.





Slide 1
Slide 2
Slide 2
Slide 2
Slide 2
Feel Free to Get in Touch with Us.! Contact Us